Tätigkeit
Wir bauen …
Mitwirken bei jungheim
Wir freuen uns stets über inspirierte und motivierte Spontanbewerbungen.
Du hast Lust, Teil unseres Teams zu werden? Dann lass uns deine handgeschriebene Bewerbung und ein physisches Portfolio zukommen – gerne per Post oder persönlich vorbeigebracht.
Keine Sorge, deine Unterlagen bekommst du selbstverständlich zurück. Wir freuen uns darauf, von dir zu hören!

Unser Wettbewerbsbeitrag für die kostengünstige Wohnüberbauung an der Freiburgstrasse, Bern in Zusammenarbeit mit Vladimir Andelic Architektur.

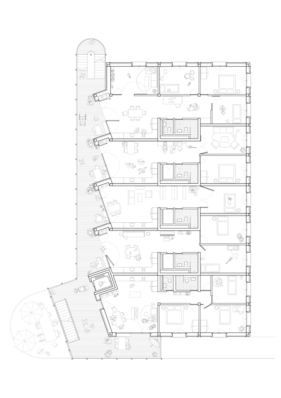
Gemeinschaftliches Wohnen – Im Rahmen eines qualitätsichernden Workshopverfahrens in Büren zum Hof wurde zusammen mit der Bauherrschaft deren Vision konkretisiert. Der Neubau im ISOS geschützten Ortsbild nimmt typische, ortsbauliche Elemente auf und überträgt diese in eine zeitgemässe Architektur.

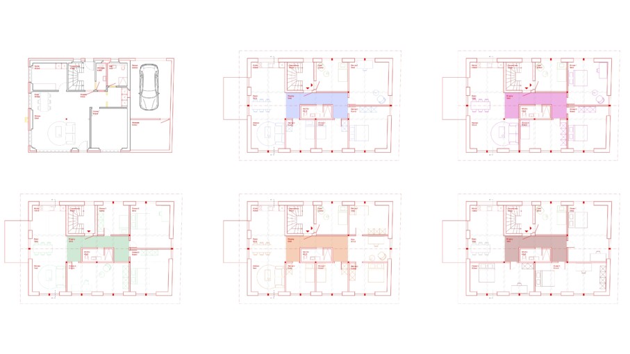
Im Rahmen einer Machbarkeitsstudie wurde geprüft, wie sich das bestehende Einfamilienhaus in ein flexibles und wandelbares Generationenhaus erweitern lässt.

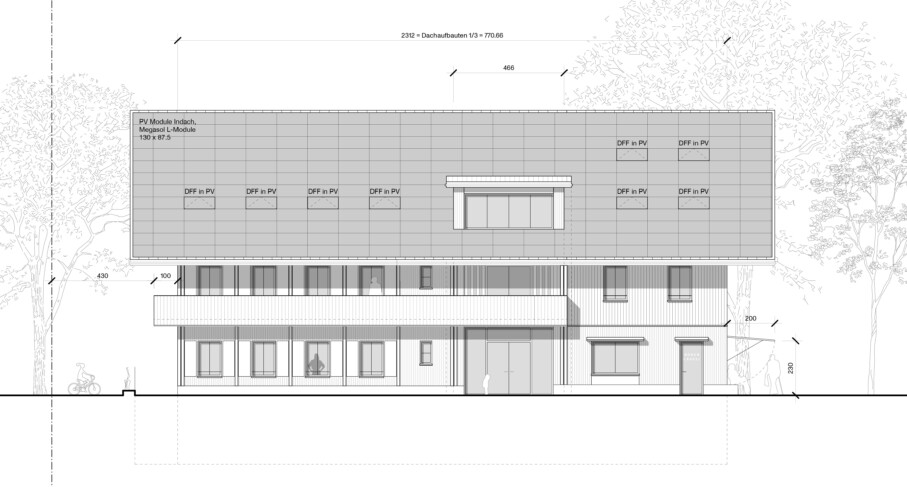
Baubewilligung erteilt – Die neuklassizistische Turnhalle Altenberg mit Schwingkeller, Garderoben und einer Betriebswohnung wird ab Sommer saniert.

Townhouse in Ins – bestehender, kleiner Fussabdruck am Hang. Die Machbarkeitsstudie zeigt auf, wie mit einem Ersatzneubau in beengten Verhältnissen qualitatives Wohnen realisierbar ist.
