Die gleichen Köpfe, aber neu organisiert:
AAB Architekten ist nun integraler Bestandteil der jungheim Architektur.

Wettbewerb

Schule Neufeld Thun

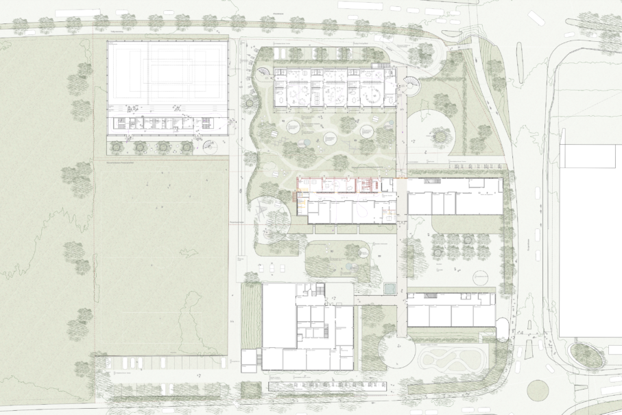
Die denkmalgeschützte Schul- und Sportanlage aus den 1950er- bzw. 1960er-Jahren wird nordseitig um zwei kompakte Gebäudekörper ergänzt.
Der Neubau der Basisstufe kommt als selbstverständliche Ergänzung der bestehenden Schultrakte zu liegen, die Doppelturnhalle in einer zweiten Etappe als eigenständiger, markanter Stadtbaustein.

2319 Wettbewerb Schule Neufeld Thun Visualisierung
2319 Wettbewerb Schule Neufeld Thun Modellfoto.JPEG
Daten
OrtThun
NutzungBasisstufe, Tagesschule, Sporthalle
BauherrschaftStadt Thun
Planung2023
Leistungoffener Projektwettbewerb
ARGE mitMärki Sahli Architekten, Bern
LandschaftsarchitekturMoeri&Partner, Bern
BauingenieurwesenWAM Planer und Ingenieure, Bern
GebäudetechnikEicher+Pauli, Bern
VisualisierungPixelschmiede, Ittigen
ModellbauBatt, Münsingen
2319 Wettbewerb Schule Neufeld Thun Situation
Typologisch wird der Neubau als ergänzender Trakt in die Gesamtanlage eingewoben. Der dreigeschossige Bau für die sechs Basisstufeneinheiten antwortet mit seiner volumetrischen Ausprägung auf die baulichen Entwicklungen im Siegenthalergut und fungiert gleichzeitig als Lärmschutzriegel für die gesamte Schulanlage. Die Gebäudeproportionen orientieren sich am schützenswerten Bestand. Grundrisstypologisch wird das bestehende Muster weitergestrickt und zu einer zeitgemässen Lernlandschaft adaptiert.
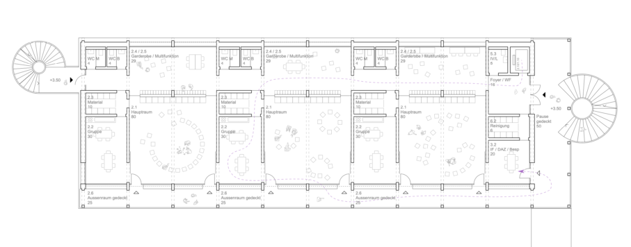
2319 Wettbewerb Schule Neufeld Thun 1. Obergeschoss
Die gewendelten Vertikalerschliessungen sind erweiterter Aussenraum, Begegnungszone und sorgen für kurze Wege in den durchgrünten Aussenraum.
2319 Wettbewerb Schule Neufeld Thun Fassadenschnitt Basisstufe
Das stringente Raster der Holzbauweise prägt auch den architektonischen Ausdruck der Neubauten. Die Farbgebung und Fensterteilung orientieren sich am Vorhandenen der denkmalgeschützten Bestandsbauten. Das Vorgefundene wird auf die Neubauten zeitgemäss übersetzt.
2319 Wettbewerb Schule Neufeld Thun Schnittperspektive Sporthalle
Der Haupteingang der Doppelturnhalle liegt zentral in der Gesamtanlage. So werden die Zugänge zum Rasenspielfeld, zur Doppelturnhalle und der Aufgang zum Allwetterplatz gebündelt und entsprechend akzentuiert.
Zur Weststrasse hin ist die tieferliegende Sporthalle ab dem Trottoir direkt einsehbar und eröffnet den Spazierenden einen erfrischenden Einblick in den Sportbetrieb. Zwischen Sporthalle und Rasenspielfeld wird eine vielfältig nutzbare Vorzone freigespielt. Der Allwetterplatz kommt auf dem Dach zu liegen, gegen den Himmel wird der Baukörper mit einem Ballfang als leichte, aufgesetzte Krone abgeschlossen.
2319 Wettbewerb Schule Neufeld Thun Längsschnitt