Tätigkeiten
darin
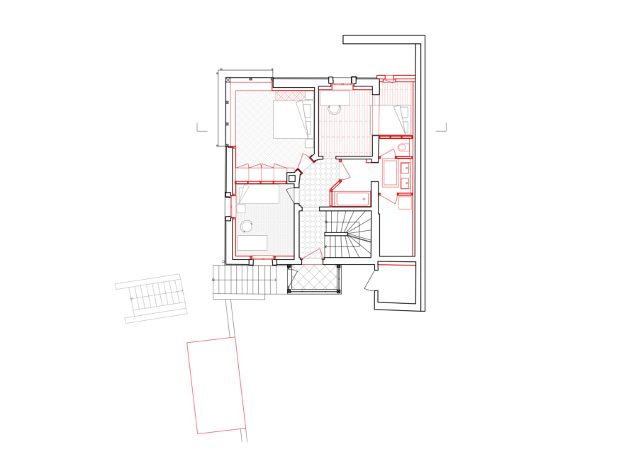
| Daten | |
|---|---|
| Ort | Spiegel BE |
| Nutzung | Wohnen |
| Bauherrschaft | Privat |
| Planung | 2024 |
| Ausführung | 2025 |
| Leistung | Planung & Realisierung |
| Fotos | Mario Rüegger |









Die gleichen Köpfe, aber neu organisiert:
AAB Architekten ist nun integraler Bestandteil der jungheim Architektur.


| Daten | |
|---|---|
| Ort | Spiegel BE |
| Nutzung | Wohnen |
| Bauherrschaft | Privat |
| Planung | 2024 |
| Ausführung | 2025 |
| Leistung | Planung & Realisierung |
| Fotos | Mario Rüegger |








